AIRPORT |
Lawrence Municipal |
LOCAL PRIORITY |
|
UPDATED |
01/07 |
|||||||
WORK ITEM |
CAPITAL IMPROVEMENT PROGRAM, FY2007 – FY2012 |
In what FY do you want to construct? |
|
|||||||||
SKETCH: |
|
|||||||||||
|
||||||||||||
JUSTIFICATION: |
|
|||||||||||
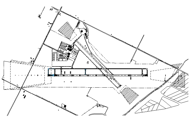
Lawrence Municipal Airport is a general aviation facility located approximately three miles north of the central business district of Lawrence, Kansas. It is about one mile east of the Kansas River and one mile north of Interstate 70. Access to the airport is via U.S. Highway 24/40. The airport currently has approximately 85 based aircraft, two of which are business jets and six are multi-engine. Approximately 40,000 total annual aircraft operations occur at the airport. The airport currently has two paved runways. Primary Runway 15-33 is 5,700 feet long and 100 feet wide. It is served by a Category I precision instrument landing system (ILS) and medium intensity approach lighting system with runway alignment indicator lights (MALSR) on Runway 33. Secondary Runway 1-19 is 3,900 feet long and 75 feet wide. It has only visual approaches. The runways are served by taxiway systems leading to aircraft parking areas and the airport building area. To accommodate current and projected aviation demand in the Lawrence Municipal Airport’s service area and upgrade the facility to current FAA design standards, the following Capital Improvement Plan is recommended. |
||||||||||||
|
Sponsor Signature: |
Date: |
||||||||||
COST ESTIMATE: |
|
|||||||||||
2007 |
Improve Runway 15-33 Safety Area to Category C-II |
1,173,000 |
||||||||||
2008 |
Construct Remainder of Taxiway “D” |
548,780 |
||||||||||
2008 |
Install Perimeter/ Security Fence and Access Control |
600,000 |
||||||||||
2009 |
Install REILs for Runway 15 and Wind Cones for Runway 15-33 |
65,000 |
||||||||||
2009 |
Acquire Land and Easements for BRL and RPZ on Runway 1-19 |
85,000 |
||||||||||
2009 |
Install Airport Signage for Part 139 |
135,000 |
||||||||||
2009 |
Airport Master Plan Update |
150,000 |
||||||||||
2010 |
East Apron Expansion, Phase I (20,000 S.Y. +/-) |
2,308,500 |
||||||||||
2010 |
Equipment Storage Building, SRE and ARFF Equipment |
650,000 |
||||||||||
2011 |
East Apron Expansion, Phase II (15,000 S.Y. +/-) |
1,909,000 |
||||||||||
2011 |
Environmental Assessment for Runway Extension |
75,000 |
||||||||||
2012 |
Extend Runway 15-33 (400’ x 100’) and Taxiway A (400’ x 35’) |
2,749,000 |
||||||||||
2012 |
East Apron Expansion, Phase III (15,000 S.Y. +/-) |
1,924,000 |
||||||||||
|
|
|
|
|
|
|||||||
AIRPORT |
Lawrence Municipal |
LOCAL PRIORITY |
1 |
UPDATED |
01/07 |
||||||||||
WORK ITEM |
Improve Safety Area to C-II Standards on Runway 15-33 |
In what FY do you want to construct? |
2007 |
||||||||||||
SKETCH: |
|
||||||||||||||
|
|||||||||||||||
JUSTIFICATION: |
|
||||||||||||||
The existing safety areas to Runways 15-33 need to be upgraded and improved to meet current C-II FAA standards. Tasks include, widening, obstruction removal and grading to current standards. |
|||||||||||||||
|
Sponsor Signature: |
Date: |
|||||||||||||
COST ESTIMATE: |
|
||||||||||||||
Description |
Quantity |
Unit |
Unit Cost |
Est. Cost |
|||||||||||
Mobilization |
1 |
L.S. |
$ 45,000.00 |
$ 45,000 |
|||||||||||
Embankment |
73,300 |
C.Y. |
12.00 |
879,600 |
|||||||||||
Drainage Improvements |
1 |
L.S. |
97,000.00 |
97,000 |
|||||||||||
Seeding |
52 |
Acre |
1,200.00 |
62,400 |
|||||||||||
Engineering and Testing |
1 |
L.S. |
89,000.00 |
89,000 |
|||||||||||
Total |
|
|
|
$ 1,173,000 |
|||||||||||
|
|
|
|
|
|||||||||||
|
|
|
|
|
|||||||||||
|
|
|
|
|
|||||||||||
|
|||||||||||||||
PREAPP NUMBER |
GRANT NUMBER |
NPIAS CODE |
WORK CODE |
FAA PRIORITY |
FEDERAL $ |
||||||||||
|
|
|
|
|
|
||||||||||
AIRPORT |
Lawrence Municipal |
LOCAL PRIORITY |
2 |
UPDATED |
01/07 |
||||||||||
WORK ITEM |
Construct Remainder of Taxiway “D” |
In what FY do you want to construct? |
2008 |
||||||||||||
SKETCH: |
|
||||||||||||||
|
|||||||||||||||
JUSTIFICATION: |
|
||||||||||||||
Installation and/or upgrading airport perimeter/security fencing is necessary to control inadvertent entry onto the airports restricted operational areas for both people and wildlife, and to promote a higher level of security and access control around restricted airport facilities and infrastructure. |
|||||||||||||||
|
Sponsor Signature: |
Date: |
|||||||||||||
COST ESTIMATE: |
|
||||||||||||||
Description |
Quantity |
Unit |
Unit Cost |
Est. Cost |
|||||||||||
Mobilization |
1 |
L.S. |
$40,000.00 |
$ 40,000 |
|||||||||||
Embankment |
5,000 |
C.Y. |
12.00 |
60,000 |
|||||||||||
Subgrade Stabilization |
5,200 |
S.Y. |
16.00 |
83,200 |
|||||||||||
Subbase Course |
4,470 |
S.Y. |
14.00 |
62,580 |
|||||||||||
Asphalt Paving |
1000 |
Ton |
130.00 |
130,000 |
|||||||||||
Drainage Improvements |
1 |
L.S. |
10,000.00 |
10,000 |
|||||||||||
Apron & Taxiway Marking |
1 |
L.S. |
7,000.00 |
7,000 |
|||||||||||
Side Drains |
2,500 |
L.F. |
15.00 |
15,000 |
|||||||||||
Lighting & Signage |
1 |
L.S. |
32,000.00 |
32,000 |
|||||||||||
Seeding |
6 |
Acre |
1,500.00 |
9,000 |
|||||||||||
Engineering and Testing |
1 |
L.S. |
100,000.00 |
100,000 |
|||||||||||
Total |
|
|
|
$ 548,780 |
|||||||||||
|
|||||||||||||||
PREAPP NUMBER |
GRANT NUMBER |
NPIAS CODE |
WORK CODE |
FAA PRIORITY |
FEDERAL $ |
||||||||||
|
|
|
|
|
|
||||||||||
AIRPORT |
Lawrence Municipal |
LOCAL PRIORITY |
3 |
UPDATED |
01/07 |
||||||||||
WORK ITEM |
Install Airport Perimeter/Security Fencing |
In what FY do you want to construct? |
2008 |
||||||||||||
SKETCH: |
|
||||||||||||||
|
|||||||||||||||
JUSTIFICATION: |
|
||||||||||||||
Installation and/or upgrading airport perimeter/security fencing is necessary to control inadvertent entry onto the airports restricted operational areas for both people and wildlife, and to promote a higher level of security and access control around restricted airport facilities and infrastructure. |
|||||||||||||||
|
Sponsor Signature: |
Date: |
|||||||||||||
COST ESTIMATE: |
|
||||||||||||||
Description |
Quantity |
Unit |
Unit Cost |
Est. Cost |
|||||||||||
Mobilization |
1 |
L.S. |
$ 10,000.00 |
$ 10,000 |
|||||||||||
Woven Wire Fencing (8’) |
26,000 |
L.F. |
12.00 |
312,000 |
|||||||||||
Chain link Fencing (8’) |
3,500 |
L.F. |
25.00 |
87,500 |
|||||||||||
Walk Gate |
8 |
Each |
500.00 |
4,000 |
|||||||||||
Driveway Gate |
4 |
Each |
1,500.00 |
6,000 |
|||||||||||
Automatic Driveway Gate |
3 |
Each |
30,000.00 |
90,000 |
|||||||||||
Engineering and Testing |
1 |
L.S. |
90,500.00 |
90,500 |
|||||||||||
Total |
|
|
|
$ 600,000 |
|||||||||||
|
|
|
|
|
|||||||||||
|
|
|
|
|
|||||||||||
|
|
|
|
|
|||||||||||
|
|
|
|
|
|||||||||||
|
|||||||||||||||
PREAPP NUMBER |
GRANT NUMBER |
NPIAS CODE |
WORK CODE |
FAA PRIORITY |
FEDERAL $ |
||||||||||
|
|
|
|
|
|
||||||||||
AIRPORT |
Lawrence Municipal |
LOCAL PRIORITY |
4 |
UPDATED |
01/07 |
|||||||||||
WORK ITEM |
Install Runway End Identifier Lights (REIL) on Runway 15, and Install Supplemental Wind Cone on Approach End of Runway 15-33. |
In what FY do you want to construct? |
2009 |
|||||||||||||
SKETCH: |
|
|||||||||||||||
|
||||||||||||||||
JUSTIFICATION: |
|
|||||||||||||||
To improve safety of all airfield operations, it is recommended that additional visual approach aids be installed on the airfield. All items will be installed in accordance with FAA specification requirements. The REILs will provide visual cues to pilots during their landing approach to the runway end both day and night, and during times of reduced visibility. The supplemental wind cones for Runways 15 and 33 will provide more accurate wind direction and velocity information to pilots during their takeoff and landing approach. |
||||||||||||||||
|
Sponsor Signature: |
Date: |
||||||||||||||
COST ESTIMATE: |
|
|||||||||||||||
Description |
Quantity |
Unit |
Unit Cost |
Est. Cost |
||||||||||||
Cable, 1/C #8, 5kV L-824C |
2,000 |
L.F. |
$ 1.25 |
$ 2,500 |
||||||||||||
Direct Burial Duct |
1,000 |
L.F. |
4.00 |
4,000 |
||||||||||||
Junction Box |
2 |
Each |
500.00 |
1,000 |
||||||||||||
REIL System |
1 |
Each |
15,000.00 |
15,000 |
||||||||||||
L-806 8’ Wind Cone |
2 |
Each |
7,500.00 |
15,000 |
||||||||||||
Power & Control Equipment |
1 |
L.S. |
10,000.00 |
10,000 |
||||||||||||
Engineering and Testing |
1 |
L.S. |
17,500.00 |
17,500 |
||||||||||||
Total |
|
|
|
$ 65,000 |
||||||||||||
|
|
|
|
|
||||||||||||
|
|
|
|
|
||||||||||||
|
|
|
|
|
||||||||||||
|
|
|
|
|
||||||||||||
PREAPP NUMBER |
GRANT NUMBER |
NPIAS CODE |
WORK CODE |
FAA PRIORITY |
FEDERAL $ |
|||||||||||
|
|
|
|
|
|
|||||||||||
AIRPORT |
Lawrence Municipal |
LOCAL PRIORITY |
5 |
UPDATED |
01/07 |
|||||||||||
WORK ITEM |
Acquire Land (6.5 Acres) for Building Restriction Line and Easements (23.7 Acres) on Runway 1-19 |
In what FY do you want to construct? |
2009 |
|||||||||||||
SKETCH: |
|
|||||||||||||||
|
||||||||||||||||
JUSTIFICATION: |
|
|||||||||||||||
The existing airport property does not encompass the standard runway object free area (OFA) nor the full Building Restriction Line (BRL) for Runway 1-19. This tract will be acquired in fee. |
||||||||||||||||
|
Sponsor Signature: |
Date: |
||||||||||||||
COST ESTIMATE: |
|
|||||||||||||||
Description |
Quantity |
Unit |
Unit Cost |
Est. Cost |
||||||||||||
Land |
1 |
L.S. |
$35,000.00 |
$ 35,000 |
||||||||||||
Easements |
1 |
L.S. |
40,000.00 |
40,000 |
||||||||||||
Land Acquisition Assistance |
1 |
L.S. |
5,000.00 |
5,000 |
||||||||||||
Survey & Appraisals |
1 |
L.S. |
4,000.00 |
4,000 |
||||||||||||
Administration |
1 |
L.S. |
1,000.00 |
1,000 |
||||||||||||
Total |
|
|
|
$ 85,000 |
||||||||||||
|
|
|
|
|
||||||||||||
|
|
|
|
|
||||||||||||
|
|
|
|
|
||||||||||||
|
|
|
|
|
||||||||||||
|
|
|
|
|
||||||||||||
|
|
|
|
|
||||||||||||
|
||||||||||||||||
PREAPP NUMBER |
GRANT NUMBER |
NPIAS CODE |
WORK CODE |
FAA PRIORITY |
FEDERAL $ |
|||||||||||
|
|
|
|
|
|
|||||||||||
AIRPORT |
Lawrence Municipal |
LOCAL PRIORITY |
6 |
UPDATED |
01/07 |
||||||||||
WORK ITEM |
Install Airfield Signage for Part 139 |
In what FY do you want to construct? |
2009 |
||||||||||||
SKETCH: |
|
||||||||||||||
|
|||||||||||||||
JUSTIFICATION: |
|
||||||||||||||
The existing airfield signage along Runway 15-33 needs to be upgraded and improved to meet Part 139 standards. Tasks include sign removal, installation, and grading to meet current standards. |
|||||||||||||||
|
Sponsor Signature: |
Date: |
|||||||||||||
COST ESTIMATE: |
|
||||||||||||||
Description |
Quantity |
Unit |
Unit Cost |
Est. Cost |
|||||||||||
Taxiway Guidance Signs |
1 |
L.S. |
$ 75,000.00 |
$ 75,000 |
|||||||||||
Runway Distance Remaining Signs |
1 |
L.S. |
15,000.00 |
15,000 |
|||||||||||
Power and Control Equipment |
1 |
L.S. |
10,000.00 |
10,000 |
|||||||||||
Engineering and Testing |
1 |
L.S. |
35,000.00 |
35,000 |
|||||||||||
Total |
|
|
|
$ 135,000 |
|||||||||||
|
|
|
|
|
|||||||||||
|
|
|
|
|
|||||||||||
|
|
|
|
|
|||||||||||
|
|
|
|
|
|||||||||||
|
|
|
|
|
|||||||||||
|
|||||||||||||||
PREAPP NUMBER |
GRANT NUMBER |
NPIAS CODE |
WORK CODE |
FAA PRIORITY |
FEDERAL $ |
||||||||||
|
|
|
|
|
|
||||||||||
AIRPORT |
Lawrence Municipal |
LOCAL PRIORITY |
7 |
UPDATED |
01/07 |
||||||||||
WORK ITEM |
Airport Mater Plan Update |
In what FY do you want to construct? |
2009 |
||||||||||||
SKETCH: |
|
||||||||||||||
|
|||||||||||||||
JUSTIFICATION: |
|
||||||||||||||
To update the Airport Master Plan to keep with the current standards. |
|||||||||||||||
|
Sponsor Signature: |
Date: |
|||||||||||||
COST ESTIMATE: |
|
||||||||||||||
Description |
Quantity |
Unit |
Unit Cost |
Est. Cost |
|||||||||||
Airport Master Plan Update |
1 |
L.S. |
$ 150,000.00 |
$ 150,000 |
|||||||||||
Total |
|
|
|
$ 150,000 |
|||||||||||
|
|
|
|
|
|||||||||||
|
|
|
|
|
|||||||||||
|
|
|
|
|
|||||||||||
|
|
|
|
|
|||||||||||
|
|
|
|
|
|||||||||||
|
|
|
|
|
|||||||||||
|
|
|
|
|
|||||||||||
|
|
|
|
|
|||||||||||
|
|
|
|
|
|||||||||||
PREAPP NUMBER |
GRANT NUMBER |
NPIAS CODE |
WORK CODE |
FAA PRIORITY |
FEDERAL $ |
||||||||||
|
|
|
|
|
|
||||||||||
AIRPORT |
Lawrence Municipal |
LOCAL PRIORITY |
8 |
UPDATED |
01/07 |
||||||||||
WORK ITEM |
Expand Aircraft Parking Apron (Phase I) (20,000 S.Y.) |
In what FY do you want to construct? |
2010 |
||||||||||||
SKETCH: |
|
||||||||||||||
|
|||||||||||||||
JUSTIFICATION: |
|
||||||||||||||
Initiate Aircraft Parking Apron to be expanded as necessary to meet forecast demand for airport operations, based and iterate aircraft demands. |
|||||||||||||||
|
Sponsor Signature: |
Date: |
|||||||||||||
COST ESTIMATE: |
|
||||||||||||||
Description |
Quantity |
Unit |
Unit Cost |
Est. Cost |
|||||||||||
Mobilization |
1 |
L.S. |
$75,000.00 |
$ 75,000 |
|||||||||||
Embankment |
10,000 |
C.Y. |
12.00 |
120,000 |
|||||||||||
Subgrade Stabilization |
20,000 |
S.Y. |
8.00 |
160,000 |
|||||||||||
Subbase Course |
20,000 |
S.Y. |
12.00 |
240,000 |
|||||||||||
Asphalt Paving |
9,500 |
Ton |
130.00 |
1,235,000 |
|||||||||||
Drainage Improvements |
1 |
L.S. |
80,000.00 |
80,000 |
|||||||||||
Apron & Taxiway Marking |
1 |
L.S. |
10,000.00 |
10,000 |
|||||||||||
Tiedowns |
60 |
Each |
400.00 |
24,000 |
|||||||||||
Lighting & Signage |
1 |
L.S. |
60,000.00 |
60,000 |
|||||||||||
Seeding |
3 |
Acre |
1,500.00 |
4,500 |
|||||||||||
Engineering and Testing |
1 |
L.S. |
300,000.00 |
300,000 |
|||||||||||
Total |
|
|
|
$ 2,308,500 |
|||||||||||
|
|
|
|
|
|||||||||||
|
|
|
|
|
|||||||||||
PREAPP NUMBER |
GRANT NUMBER |
NPIAS CODE |
WORK CODE |
FAA PRIORITY |
FEDERAL $ |
||||||||||
|
|
|
|
|
|
||||||||||
AIRPORT |
Lawrence Municipal |
LOCAL PRIORITY |
10 |
UPDATED |
01/07 |
||||||||||
WORK ITEM |
Construct Equipment Storage Building, Acquire Snow Removal Equipment, and Index A ARFF Truck |
In what FY do you want to construct? |
2010 |
||||||||||||
SKETCH: |
|
||||||||||||||
|
|||||||||||||||
JUSTIFICATION: |
|
||||||||||||||
The equipment storage building will house the snow removal equipment and ARFF Truck. |
|||||||||||||||
|
Sponsor Signature: |
Date: |
|||||||||||||
COST ESTIMATE: |
|
||||||||||||||
Description |
Quantity |
Unit |
Unit Cost |
Est. Cost |
|||||||||||
Equipment Storage Building |
1 |
L.S. |
$ 300,000 |
$ 300,000 |
|||||||||||
Dump Truck with Snow Plow |
1 |
L.S. |
130,000 |
130,000 |
|||||||||||
Index A ARFF Truck |
1 |
L.S. |
150,000 |
150,000 |
|||||||||||
ARFF Auxiliary Equipment |
1 |
L.S. |
15,000 |
15,000 |
|||||||||||
Engineering and Testing |
1 |
L.S. |
55,000 |
55,000 |
|||||||||||
Total |
|
|
|
$ 650,000 |
|||||||||||
|
|
|
|
|
|||||||||||
|
|
|
|
|
|||||||||||
|
|
|
|
|
|||||||||||
|
|
|
|
|
|||||||||||
|
|||||||||||||||
|
|||||||||||||||
|
|||||||||||||||
|
|||||||||||||||
PREAPP NUMBER |
GRANT NUMBER |
NPIAS CODE |
WORK CODE |
FAA PRIORITY |
FEDERAL $ |
||||||||||
|
|
|
|
|
|
||||||||||
AIRPORT |
Lawrence Municipal |
LOCAL PRIORITY |
11 |
UPDATED |
01/07 |
||||||||||
WORK ITEM |
Expand Aircraft Parking Apron (Phase II) (15,000 S.Y.) |
In what FY do you want to construct? |
2011 |
||||||||||||
SKETCH: |
|
||||||||||||||
|
|||||||||||||||
JUSTIFICATION: |
|
||||||||||||||
Initiate Aircraft Parking Apron to be expanded as necessary to meet forecast demand for airport operations, based and itinerate aircraft demands. |
|||||||||||||||
|
Sponsor Signature: |
Date: |
|||||||||||||
COST ESTIMATE: |
|
||||||||||||||
Description |
Quantity |
Unit |
Unit Cost |
Est. Cost |
|||||||||||
Mobilization |
1 |
L.S. |
$60,000.00 |
$ 60,000 |
|||||||||||
Embankment |
7,500 |
C.Y. |
12.00 |
90,000 |
|||||||||||
Subgrade Stabilization |
15,000 |
S.Y. |
8.00 |
120,000 |
|||||||||||
Subbase Course |
15,000 |
S.Y. |
12.00 |
180,000 |
|||||||||||
Asphalt Paving |
7,400 |
Ton |
130.00 |
962,000 |
|||||||||||
Drainage Improvements |
1 |
L.S. |
90,000.00 |
90,000 |
|||||||||||
Apron & Taxiway Marking |
1 |
L.S. |
15,000.00 |
15,000 |
|||||||||||
Tiedowns |
60 |
Each |
400.00 |
24,000 |
|||||||||||
Lighting & Signage |
1 |
L.S. |
75,000.00 |
75,000 |
|||||||||||
Seeding |
2 |
Acre |
1,500.00 |
3,000 |
|||||||||||
Engineering and Testing |
1 |
L.S. |
290,000.00 |
290,000 |
|||||||||||
Total |
|
|
|
$ 1,909,000 |
|||||||||||
|
|
|
|
|
|||||||||||
|
|||||||||||||||
|
|||||||||||||||
PREAPP NUMBER |
GRANT NUMBER |
NPIAS CODE |
WORK CODE |
FAA PRIORITY |
FEDERAL $ |
||||||||||
|
|
|
|
|
|
||||||||||
AIRPORT |
Lawrence Municipal |
LOCAL PRIORITY |
12 |
UPDATED |
01/07 |
||||||||||
WORK ITEM |
Environmental Assessment for Runway Extension |
In what FY do you want to construct? |
2011 |
||||||||||||
SKETCH: |
|
||||||||||||||
|
|||||||||||||||
JUSTIFICATION: |
|
||||||||||||||
Appease environmental concerns with expanding the runway. |
|||||||||||||||
|
Sponsor Signature: |
Date: |
|||||||||||||
COST ESTIMATE: |
|
||||||||||||||
Description |
Quantity |
Unit |
Unit Cost |
Est. Cost |
|||||||||||
Environmental Assessment |
1 |
L.S. |
$75,000.00 |
$ 75,000 |
|||||||||||
Total |
|
|
|
$ 75,000 |
|||||||||||
|
|
|
|
|
|||||||||||
|
|
|
|
|
|||||||||||
|
|
|
|
|
|||||||||||
|
|
|
|
|
|||||||||||
|
|
|
|
|
|||||||||||
|
|
|
|
|
|||||||||||
|
|
|
|
|
|||||||||||
|
|
|
|
|
|||||||||||
|
|||||||||||||||
|
|||||||||||||||
|
|||||||||||||||
PREAPP NUMBER |
GRANT NUMBER |
NPIAS CODE |
WORK CODE |
FAA PRIORITY |
FEDERAL $ |
||||||||||
|
|
|
|
|
|
||||||||||
AIRPORT |
Lawrence Municipal |
LOCAL PRIORITY |
13 |
UPDATED |
01/07 |
||||||||||
WORK ITEM |
Extend Runway 15-33 By 400 Feet To The South, Extend Parallel Taxiway, Airfield Lighting and Signage, Relocate Glide Slope and MALSR. |
In what FY do you want to construct? |
2012 |
||||||||||||
SKETCH: |
|
||||||||||||||
|
|||||||||||||||
JUSTIFICATION: |
|
||||||||||||||
Runway 15-33 will be extended from 5,700 feet to 6,100 feet so the airport can accommodate C-II aircraft with 1,000 nautical mile range. Runway strength will remain at 60,000 pounds DWG.
|
|||||||||||||||
|
Sponsor Signature: |
Date: |
|||||||||||||
COST ESTIMATE: |
|
||||||||||||||
Description |
Quantity |
Unit |
Unit Cost |
Est. Cost |
|||||||||||
Mobilization |
1 |
L.S. |
$50,000.00 |
$ 100,000 |
|||||||||||
Embankment |
75,000 |
C.Y. |
12.00 |
900,000 |
|||||||||||
Subbase Course |
8,000 |
S.Y. |
12.00 |
96,000 |
|||||||||||
Asphalt Paving |
4,000 |
Ton |
130.00 |
520,000 |
|||||||||||
Drainage Improvements |
1 |
L.S. |
250,000.00 |
250,000 |
|||||||||||
Runway & Taxiway Marking |
1 |
L.S. |
50,000.00 |
50,000 |
|||||||||||
Lighting & Signage |
1 |
L.S. |
100,000.00 |
100,000 |
|||||||||||
Seeding |
12 |
Acre |
1,500.00 |
18,000 |
|||||||||||
Relocate Visual Approach Aids |
1 |
L.S. |
225,000.00 |
225,000 |
|||||||||||
Relocate Electronic Approach Aids |
1 |
L.S. |
175,000.00 |
175,000 |
|||||||||||
Engineering and Testing |
1 |
L.S. |
315,000.00 |
315,000 |
|||||||||||
Total |
|
|
|
$ 2,749,000 |
|||||||||||
|
|
|
|
|
|||||||||||
|
|
|
|
|
|||||||||||
PREAPP NUMBER |
GRANT NUMBER |
NPIAS CODE |
WORK CODE |
FAA PRIORITY |
FEDERAL $ |
||||||||||
|
|
|
|
|
|
||||||||||
AIRPORT |
Lawrence Municipal |
LOCAL PRIORITY |
14 |
UPDATED |
01/07 |
||||||||||
WORK ITEM |
Expand Aircraft Parking Apron (Phase III) (15,000 S.Y.) |
In what FY do you want to construct? |
2012 |
||||||||||||
SKETCH: |
|
||||||||||||||
|
|||||||||||||||
JUSTIFICATION: |
|
||||||||||||||
Initiate Aircraft Parking Apron to be expanded as necessary to meet forecast demand for airport operations based and itinerate aircraft demands. |
|||||||||||||||
|
Sponsor Signature: |
Date: |
|||||||||||||
COST ESTIMATE: |
|
||||||||||||||
Description |
Quantity |
Unit |
Unit Cost |
Est. Cost |
|||||||||||
Mobilization |
1 |
L.S. |
$50,000.00 |
$ 80,000 |
|||||||||||
Embankment |
7,500 |
C.Y. |
12.00 |
90,000 |
|||||||||||
Subgrade Stabilization |
15,000 |
S.Y. |
8.00 |
120,000 |
|||||||||||
Subbase Course |
15,000 |
S.Y. |
12.00 |
180,000 |
|||||||||||
Asphalt Paving |
7,200 |
Ton |
130.00 |
936,000 |
|||||||||||
Drainage Improvements |
1 |
L.S. |
130,000.00 |
130,000 |
|||||||||||
Apron & Taxiway Marking |
1 |
L.S. |
15,000.00 |
15,000 |
|||||||||||
Tiedowns |
60 |
Each |
400.00 |
15,000 |
|||||||||||
Lighting & Signage |
1 |
L.S. |
75,000.00 |
75,000 |
|||||||||||
Seeding |
2 |
Acre |
1,500.00 |
3,000 |
|||||||||||
Engineering and Testing |
1 |
L.S. |
280,000.00 |
280,000 |
|||||||||||
Total |
|
|
|
$ 1,924,000 |
|||||||||||
|
|
|
|
|
|||||||||||
PREAPP NUMBER |
GRANT NUMBER |
NPIAS CODE |
WORK CODE |
FAA PRIORITY |
FEDERAL $ |
||||||||||
|
|
|
|
|
|
||||||||||