Notes
Slide Show
Outline
1
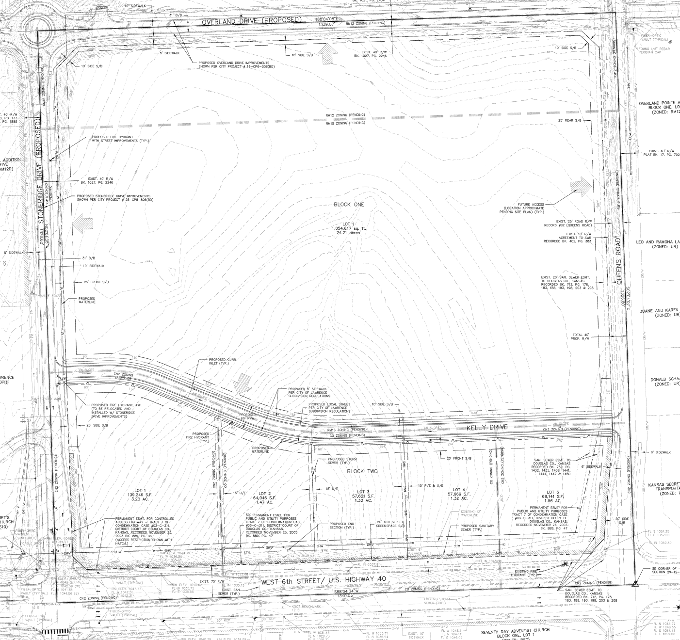
Item 6: Creekstone
  • Rezonings
  • Z-02-07A-08   6.99 acres UR to RM12
  • Z-02-07B-08  20.92 acres UR to RM15
  • Z-02-07C-08    7.23 acres UR to CN2
  • Z-02-07D-08    5.67 acres UR to CO


  • Plat
  • PP-10-09-07 34.864 acres, 6 Lot Subdivision
2
 
3
 
4
 
5
 
6
 
7
 
8
"Criteria for new Commercial Centers"
  • Criteria for new Commercial Centers
  • Any change or expansion of location must be accomplished through an amendment to the Comprehensive Plan  (page 6-20)


  • A nodal plan shall be completed before a proposal for a Neighborhood Commercial Center goes before the Planning Commission. (Policy 3.4 page 6-32)


9
"New Neighborhood Commercial Centers shall..."
  • New Neighborhood Commercial Centers shall be at least 1 mile from any existing or new commercial center [Page 6-32 policy 3.4(C)] .


10
 
11
 
12
 
13
 
14
 
15
 
16
 
17
 
18