Memorandum
City of Lawrence
Planning & Development Services
|
TO: |
David L. Corliss, City Manager |
|
FROM: |
Mary Miller, Planning Staff |
|
DATE: |
For May 20, 2014 City Commission meeting |
|
RE: |
Revised elevations for 9 Del Lofts Final Development Plan, FDP-13-00429 |
The City Commission approved the Preliminary Development Plan for 9 Del Lofts as part of the consent agenda at their October 8, 2013 meeting. The elevations have been revised substantially with the Final Development Plan; therefore, they are being placed on the City Commission’s agenda for consideration. (The full elevations are included with this memo as Attachments B and C).
|
|
|
Figure 1. Elevations approved with Preliminary Development Plan, street view. |
|
|
|
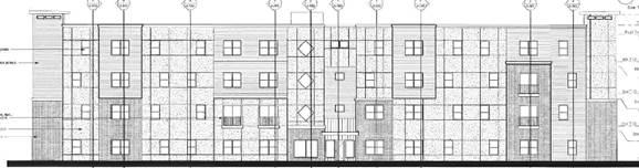
Figure 2. Revised elevations with Final Development Plan, street view. |
|
|
|
Figure 3a. Rendering of revised front building elevation. |
|
|
|
Figure 3b. Rendering of front building, showing use of color with plane changes. |
The applicant provided the following explanation for the change:
“In keeping with the authentic light industrial character of the Warehouse Arts District, the design team elected to introduce a standing seam metal facade with varying widths and color tones. Accent color panels will be introduced at relief locations within the facade, underscoring the vibrant arts culture that continues to gain momentum within adjacent properties. The majority of the facade will not require maintenance, rather, 9-Del, much like the surrounding industrial vernacular, will acquire a subtle patina with age.”
The renderings in Figure 3 illustrate the design and additional information is provided in a letter from the architect which is included with this memo as Attachment A.
The applicant indicated that the design of the earlier elevations is similar to development occurring near Downtown and it is their goal to create a unique and separate identity for this area which is more in keeping with the nature of the 8th and Penn Industrial District.
The previous elevations included an area on the ends for public art. (Figure 4) The new elevations do not designate an area for art; however, the applicant indicated that it is their intent to utilize the north and south sides of the building for public art. The elevations should be revised to note the general area which is reserved for future art.
|
|
|
Figure 4. Public art areas designated on previous north and south elevations. |
|
|
|
|
Figure 5. North view of proposed elevation |
South view of proposed elevation. |
The City does not have residential design standards so there are no standards to review the proposal with. In staff’s opinion, the building will be unique and will help establish an identity for the 8th and Penn District area.
Action Requested
Approve the revised elevation for the 9 Del Lofts multi-dwelling structure subject to the condition that the general locations being reserved for future art display be noted on the elevations.
|
|
|
|
|
|
|
|
|
|