MS-17-00095:  North Lawrence Addition No. 19, a Minor Subdivision/Replat of Lot 2, North Lawrence Addition No. 8, A subdivision in the city of Lawrence, Douglas County, Kansas. Submitted by Grob Engineering Services, LLC, for Roxanna Todd, the property owner of record.

 

ADMINISTRATIVE DETERMINATION: The Planning Director approves the Minor Subdivision subject to the following conditions:

 

1.    Provide a note that the accessory structure located in the utility easement between Lot 1 and Lot 3 will be removed or relocated.

2.    Signed agreement not to protest the formation of a benefit district for the completion of the sidewalk on North Street when the property to the east develops and North Street continues to the east.

 


KEY POINT

The Minor Subdivision proposes dividing a single through lot with frontage on North Street and Hickory Street to create two additional lots.  Utility easements would be dedicated to provide service to each lot.  Only one lot combination or division may be approved through the Minor Subdivision process except that lot line adjustments or mergers that do not increase the total number of lots may be accomplished through the Minor Subdivision/Replat process.

 

SUBDIVISION CITATIONS TO CONSIDER

 

The Subdivision Regulations for Lawrence and Unincorporated Douglas County.

 

OTHER ACTION REQUIRED

 

Submittal of a signed mylar copy of the Minor Subdivision, an executed Master Street Tree Plan, and recording fees for recording with the Douglas County Register of Deeds.

 

City Commission acceptance of dedications of easements and right-of-way scheduled for April 4, 2017 City Commission meeting.

 

 

GENERAL INFORMATION

Current Zoning and Land Use   

RS7 (Single-Dwelling Residential) District

Legal Description:

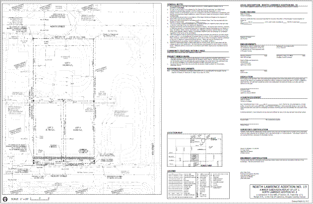
Proposed: North Lawrence Addition No. 19, a Minor Subdivision/Replat of Lot 2, North Lawrence Addition No. 8, a subdivision in the city of Lawrence, Douglas County, Kansas.

Number of Existing Lots:

1 (36,825 sq. ft.)

Number of Proposed Lots:

3 (18,405 sq. ft.), (8,790 sq. ft.) & ( 8,992 sq. ft.)

 

 

 

 

MS-17-00095 - Area map, area outlined. 

 

 

 

STAFF REVIEW

The Minor Subdivision proposes dividing one lot into three lots.  The existing Lot (36,825 sq. ft.) would be subdivided into 3 lots with the following square footage; Lot 1 (18,405 sq. ft.), Lot 2 (8,790 sq. ft.) and Lot 3 (8,992 sq. ft.). All of the lot areas would comply with zoning regulations for this zoning district, RS7 (Single-Dwelling Residential) District and are intended for Single-Dwelling structures.  The existing residential structure would remain on Lot 1.  Lot 2 & Lot 3 would accommodate new Single-Dwelling structures.

 

The property is not encumbered with floodplain.

 

 

 

 

 

 

MS-17-00095 – proposed Minor Subdivision. 

 

DIMENSIONAL REQUIREMENTS

Per Section 20-601(b) of the Development Code, the RS7 (Single-Dwelling Residential) District requires a minimum lot area of 7,000 sq. ft. a minimum frontage on a public or private street of 40 ft., and a minimum lot width of 60 ft. for lots platted after the July 1, 2006 effective date. The configuration complies with these requirements.

 

ZONING AND LAND USE

The subject property is currently developed on Lot 1 and is zoned as RS7 (Single-Dwelling Residential) District.  The proposed lot division will create two additional buildable lots fronting on Hickory Street.  The property is surrounded by residential  zoning with developed parcels on the west, north and  south. East of the property is a developed parcel and agricultural land.   Surrounding zoning is RS7 (Single-Dwelling Residential) and RS10 (Single-Dwelling Residential).

 

The Minor Subdivision indicates an accessory strucvture is currently located within the utility easement and where the common lot line between Lots 1 and 3 is proposed.  The shed will either need to be removed or relocated to comply with setbacks and outside of the utility easement.

 

UTILITIES/EASEMENTS

Utility easements will be dedicated to accommodate service to all three lots.  A 5’ utility easement on the west side of Lot 1 and Lot 2 and 15’ pedestrian and utility easements will be extended on the north side of Lot 1 and the south side of Lot 2 and Lot 3.  Public Improvement Plans are not required for this lot division.  The existing 20’ utility easement (Book 1009; Page 0758) will remain and is located along the common lot line between Lot 1 and the north lot line for Lot 2 and Lot 3.  10’ of the easement is located on each of the lots.

 

A 10’ drainage easement is proposed along the common lot lines of Lots 2 and 3.

 

ACCESS

The property is adjacent to North Street and Hickory Street, improved City Streets.  Access to Lot 1 will remain off of North Street.  Access to Lot 2 and Lot 3 will be taken off Hickory Street.   An additional 5’ of Right-of-way is being dedicated along Hickory Street to accommodate the extension of the pedestrian and utility easement and to align with the existing right-of-way to the west.  A sidewalk is proposed along Hickory Street adjacent to Lot 2 and Lot 3. The City engineer recommends installing sidewalk adjacent to Lot 1 though it is not proposed with this plat.

 

 

Master Street Tree Plan

Street trees are required at a rate of 1 tree per 40 ft of frontage. A total of 8 trees are required where the property is adjacent to local streets.  4 trees are required along North Street. 1 tree is existing and 3 will be provided.  4 trees are required along Hickory St.  4 trees are being provided, 2 on each lot.  The proposed and existing trees meet the requirements in the Subdivision Regulations (20-811(g)). A Master Street Tree Plan is provided with the Minor Subdivision.

 

The proposed lot and all aspects of the proposed Minor Subdivision conform to the current Comprehensive Plan of Lawrence and Douglas County.

 

Conclusion: The Minor Subdivision meets the approval criteria in Section 20-808(d) of the Subdivision Regulations.

 

1.    Provide a note that the accessory structure located in the utility easement between Lot 1 and Lot 3 will be removed or relocated.

2.    Signed agreement not to protest the formation of a benefit district for the completion of the sidewalk on North Street when the property to the east develops and North Street continues to the east.